Kitchen
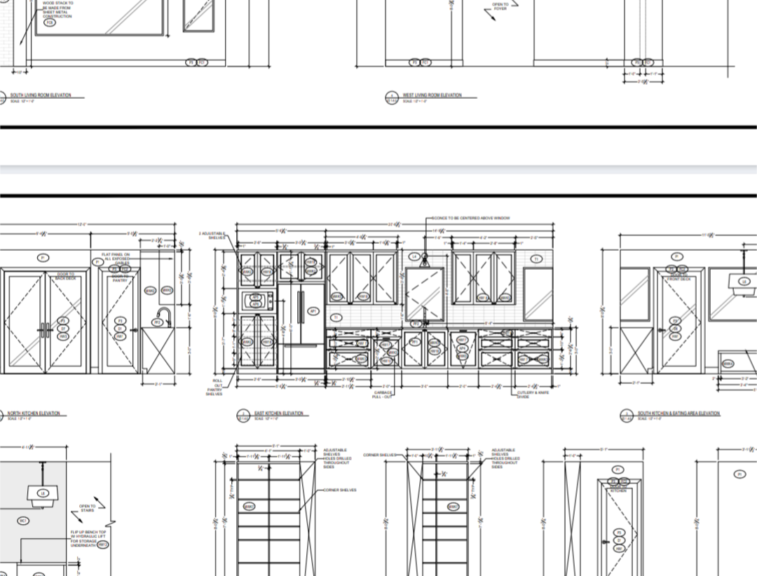
The kitchen. So many hours spent here cooking, socializing, prepping lunches, baking cookies, making preserves, packing for adventures. We wanted to create a space that would be right-sized, well lit, cheerful, connect to living spaces, provide multiple work surfaces, and views / access to the outdoors.
The original home’s kitchen was centrally located and at the back of the house, with bedrooms and dining area accessed via doors on either side. Our idea was to shift the kitchen eastward to the former “red room”, tie this to living/dining spaces with an open plan, and move all bedrooms together on the west side of the house.
So rewarding to see our new kitchen finally start to come to life! In love with the tri-coloured cabinets, layout, natural light and views. Countertops arrive this week, appliances follow.
We’ve gone with an induction stove (electric and ~3x more efficient than gas 🎉) and ceiling-mounted rangehood above the island. After much back and forth on fans, air tightness and negative pressure (see Dec 22, 2023 post) it was determined by our team that a make-up air unit for our rangehood was in fact required by code. One more system to manage, and not our first preference, but we installed the unit and moved on.
Doors and trimboard install are nearly finished. Mechanical is in too, just awaiting the heat pump. Painters have been busy getting final interior / exterior coats up as the weather dries out. We’re officially halfway through summer and inching closer to our move in date, eek!
#netzero #netzerohome #greenbuilding #sustainability #kitchen #interiordesign #induction #makeupair








